Toggle navigation
Garaža
Poslovni prostori
Prvi sprat
Drugi sprat
Treći sprat
Četvrti sprat
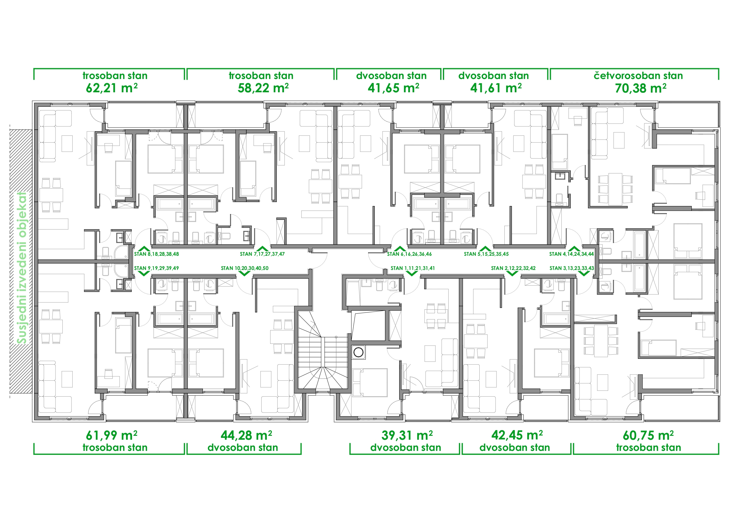
Peti sprat
(current)
Povučena etaža
PETI SPRAT